Mentions légales
fullscreen

Pôle Haluchère

NANTES (44) • 2007–2012 • Création du pôle multimodal pour la connexion L1 et L2 du tramway

Contenu de la Mission
Maîtrise d’œuvre complète

Maîtrise d’ouvrage
 SEMITAN
Nantes Métropole

Quelques chiffres
30 000 000 € HT de travaux
Dont 2 650 000 € HT Pôle

Equipe de maîtrise d’œuvre
agence Paume (AUP architectes mandataires)
avec : SCE, bureau d’études infrastructure
Arcadis, voie ferrée et ouvrages d’arts

Projet primé en 2014 au Prix Départemental d’architecture et d’aménagement de Loire-Atlantique

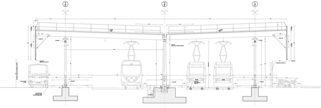
« Place » urbaine, pôle multimodal, porte d’entrée de ville : telles sont les caractéristiques du secteur Haluchère. L’intermodalité recherchée entre les projets tramway et tram-train et l’organisation d’un pôle d’échange bus ont induit le déplacement du pôle d’échange existant, à l’ouest du boulevard Jules Verne, en préservant les orientations urbaines ultérieures du quartier. Ce pôle d’échanges est d’une échelle inédite, puisqu’aux lignes de tramway, de bus, de cars, aux abris pour les vélos et au parking relais s’ajoute ici la gare du tram-train reliant Nantes à Châteaubriant.

Le quai ferroviaire de 130 mètres à conduit le projet vers une échelle digne de cet ancien faubourg industriel. En 1917, l’implantation à cet endroit de Nantes d’une unité de fabrication de locomotives par l’entreprise Batignolles-Châtillon fut dictée par la rencontre de la voie ferrée vers Châteaubriant et de la route de Paris. Ses ateliers géants, aux volumétries structurées par les ossatures en béton d’Eugène Freyssinet, dominent le site. C’est également d’une économie constructive que procède l’élégance du vaste auvent de la gare.

Telle une immense « table » posée au dessus des quais, la structure de 110 mètres par 32 est constituée de poteaux d’acier en V articulés en pied, portant trois poutres longitudinales sur lesquelles reposent des pannes en pin douglas lamellé-collé et des panneaux CLT (lamellé-croisé). Un bandeau central transparent éclaire les quais, et la toiture reçoit 1322m2 de panneaux photovoltaïques. Des retombées latérales en acier et verre participent à la légèreté du propos.

Voulu par les architectes, un parvis arboré, dallé de pierre grise, longe la gare au sud, et offre à la ville un espace propice aux échanges autres que « multimodaux ». La gare est ainsi un lieu réellement urbain, à l’échelle du piéton comme à celle de la ville dont elle constitue un signal d’entrée. (Extrait du Prix départemental d’Architecture et d’Aménagement de Loire-Atlantique 2014 – CAUE 44)