Mentions légales
fullscreen

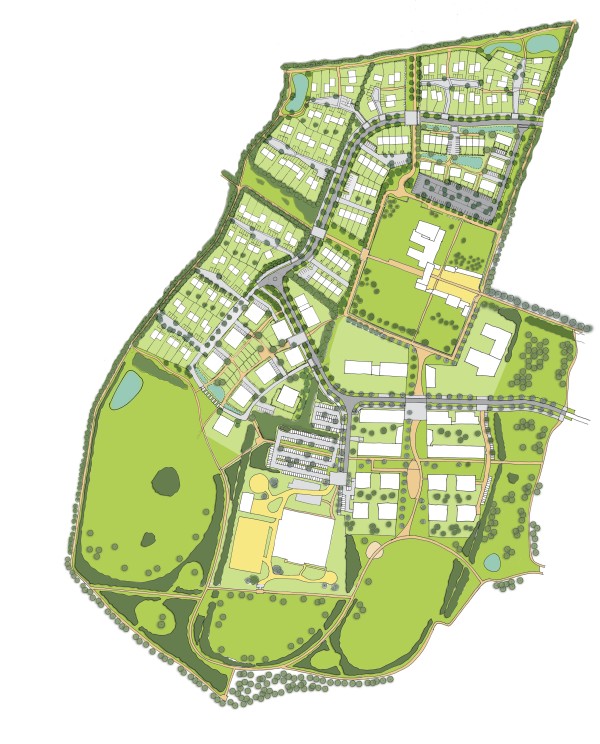
Quartier de la Fleuriaye

CARQUEFOU (44) • 1996-2007 • 2011-… • Aménagement de la ZAC de La Fleuriaye

Contenu de la Mission
Maîtrise d’œuvre urbaine
Mission complète pour la ZAC (dossier de création et dossier de réalisation)

Maîtrise d’ouvrage
Loire-Atlantique Développement, anciennement SELA

Quelques chiffres
Fleuriaye I : 65 hectares et 12 000 000 € HT de travaux
Fleuriaye II : 37 hectares et 9 300 000 € HT de travaux

Equipe de maîtrise d’œuvre
agence Paume (AUP architectes mandataires)
avec : Phytolab, Paysagistes
Artelia, Bureau d’études techniques

Projet primé en 2018 au Grand Prix des « Green Solutions Awards »

Ce projet constitue l’aboutissement du vaste projet technopolitain d’Atlanpole de l’agglomération nantaise. Pilote en matière environnementale dès l’origine de sa création dans les années 1990, le quartier de la Fleuriaye développe une démarche d’Eco-Quartier innovante, en s’appuyant sur les atouts de ce site déjà urbanisé et du site naturel qui s’ouvre sur le paysage préservé de la vallée de l’Erdre et forme une des limites de la ville de Carquefou.

Le quartier a été pensé à plusieurs échelles, depuis son contexte métropolitain jusqu’à l’échelle de l’habitant, en passant par son impact sur le territoire Carquefolien. Il regroupe ainsi 2 500 logements en habitat collectif et individuel, de nombreux bureaux d’activités tertiaires, et tout un programme d’équipements (squash & relais équestre notamment).

La trame verte existante a été la base de réflexion et de composition du projet d’aménagement, en révélant le bocage dense en place (y compris la présence de l’eau) et en restaurant le vaste parc du XIXe siècle. L’objectif était d’offrir aux habitants et usagers quotidiens un cadre de vie ancré dans la nature et le développement d’une biodiversité urbaine, permise par la conservation et la création de nombreuses continuités écologiques.

La Fleuriaye II a été lauréat, parmi dix quartiers et bâtiments français, pour le Grand Prix des « Green Solutions Awards » 2018, c’est la reconnaissance de cet aménagement comme une alternative qualitative aux lotissements classiques. Les trois « green solutions » qui ont été déterminantes pour obtenir ce prix : les aménagements respectant la biodiversité, la construction Passivhaus et l’installation de 15 000 m² de panneaux solaires, pour une couverture en énergie renouvelable supérieure à 100 %.

Presse